|
|
|
|||||||||||||||
|
|
|||||||||||||||||
|
|
|||||||||||||||||
|
|
|||||||||||||||||
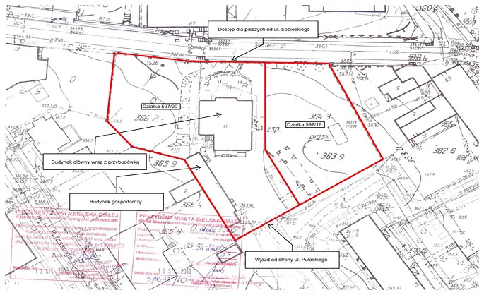
mapa zasadnicza rzut piwnicy rzut parteru rzut I piętra rzut II piętra z archiwum Mapa zasadniczaCałkowita powierzchnia działek wynosi 3379m2. Działka zabudowana o powierzchni 2157 m2 od strony wschodniej graniczy z działką niezabudowaną. Na działkach rosną stare akacje i świerki. Planowana jest wycinka drzew przysłaniających wille od strony ulicy Sobieskiego. Budynek gospodarczy o pow. 111 m2 zlokalizowany jest w północnej części działki zabudowanej. Do budynku doprowadzone są wszystkie media: gaz, woda, kanalizacja, energia elektryczna, instalacje teletechniczne. |
|
||||||||||||||||
|
|
|
|
|
|
|
||||||||||||